Ficha Técnica
Local: Barra da Tijuca – Rio de Janeiro
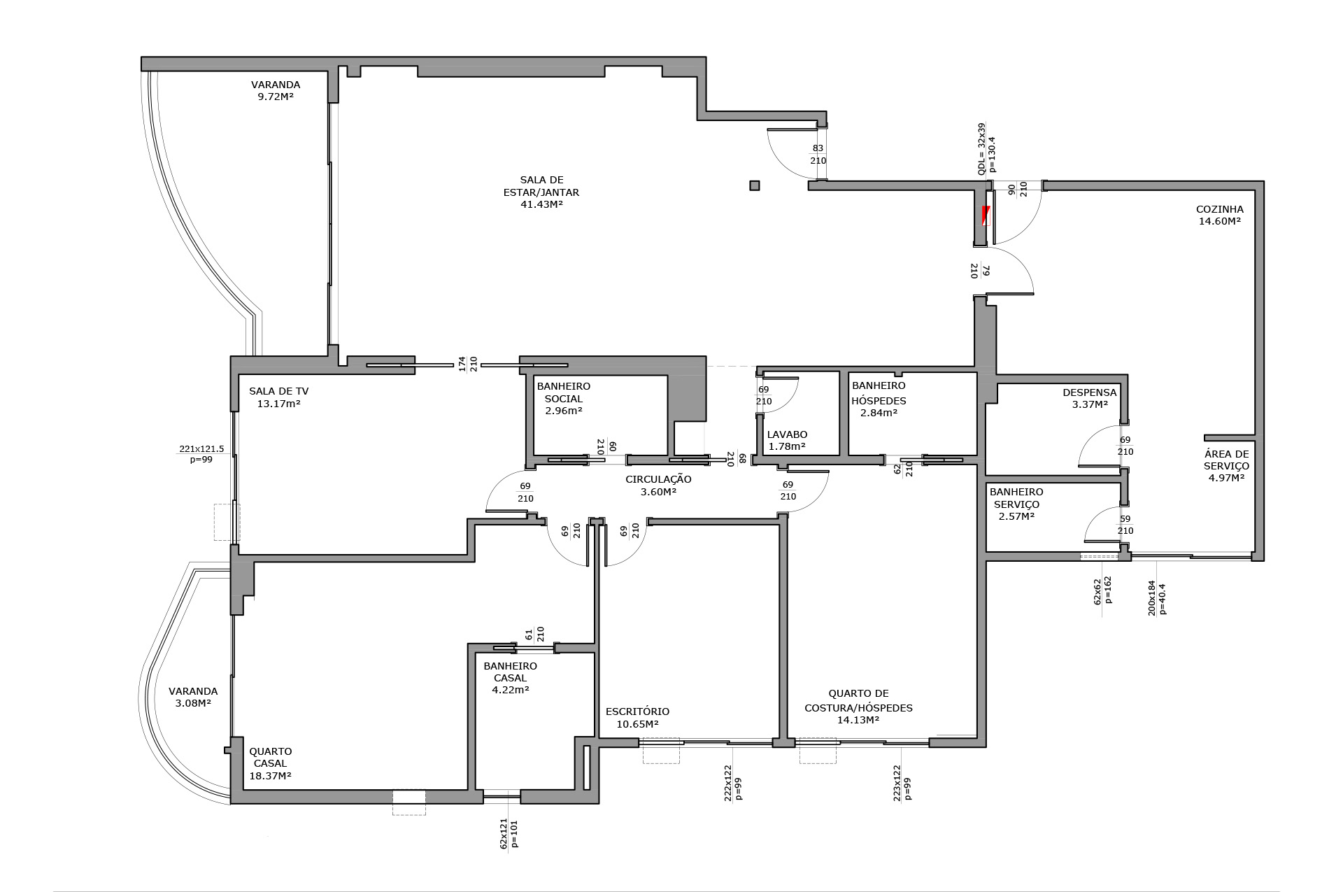
Metragem: 180 m²
Proposta: projeto de reforma completo
Perfil do projeto: O imóvel já tinha uma planta que atendia aos desejos dos clientes, por isso a única modificação feita por nós foi a união parcial das duas salas.
O projeto começou pelos estudos de layout dos cômodos. Assim que esses layouts foram definidos, partimos para a análise da parte elétrica e da iluminação.
A paleta de cor escolhida teve o azul como seu foco principal, pois era uma das cores que os clientes mais gostavam. No resto, optamos por usar revestimentos neutros e com cores mais atemporais.
O charme do projeto fica por conta da marcenaria, que foi desenhada exclusivamente para cada cantinho. A folha escolhida para os móveis foi o freijó natural.

























