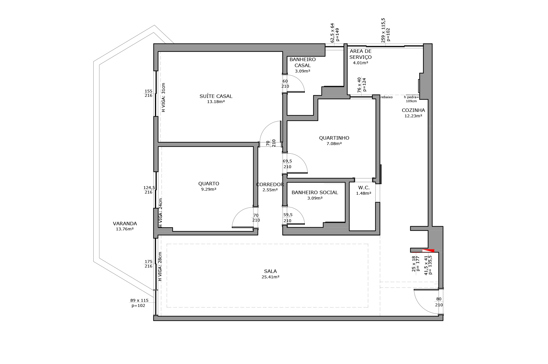
Ficha Técnica
Local: Barra da Tijuca – Rio de Janeiro
Metragem: 107 m²
Proposta: projeto de reforma completo
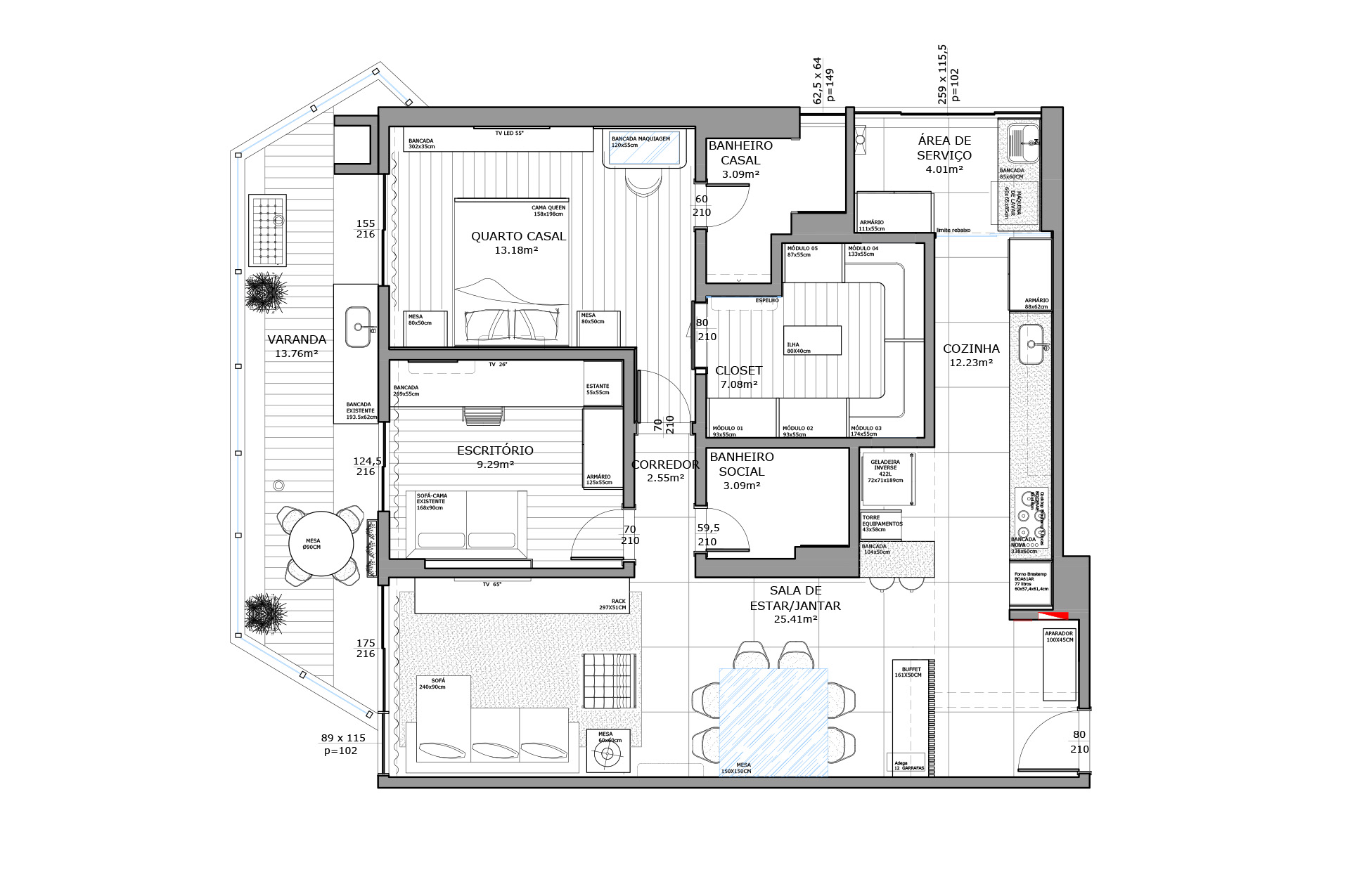
Perfil do projeto: Quando fomos medir o apartamento, a planta do imóvel já atendia a cliente; o único pedido foi reverter o quartinho de serviço em um super closet! Para isso, se julgássemos necessário, tínhamos a autorização de demolir o banheiro de serviço também. Assim, a planta foi modificada para atender o desejo da nossa cliente.
Ao lado do azul, a paleta da casa tem o cinza como o tom predominante. Apesar disso, o resultado obtido foi bem colorido. Praticamente em todos os cômodos, há sempre uma textura diferente, seja aplicada na marcenaria ou nos revestimentos.



















