Ficha Técnica
Local: Freguesia – Rio de Janeiro
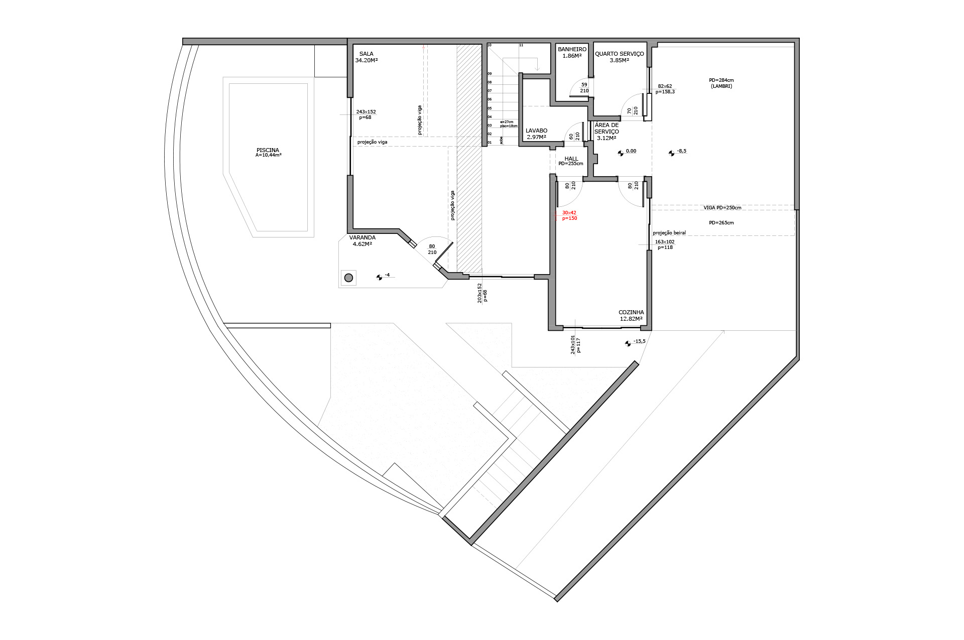
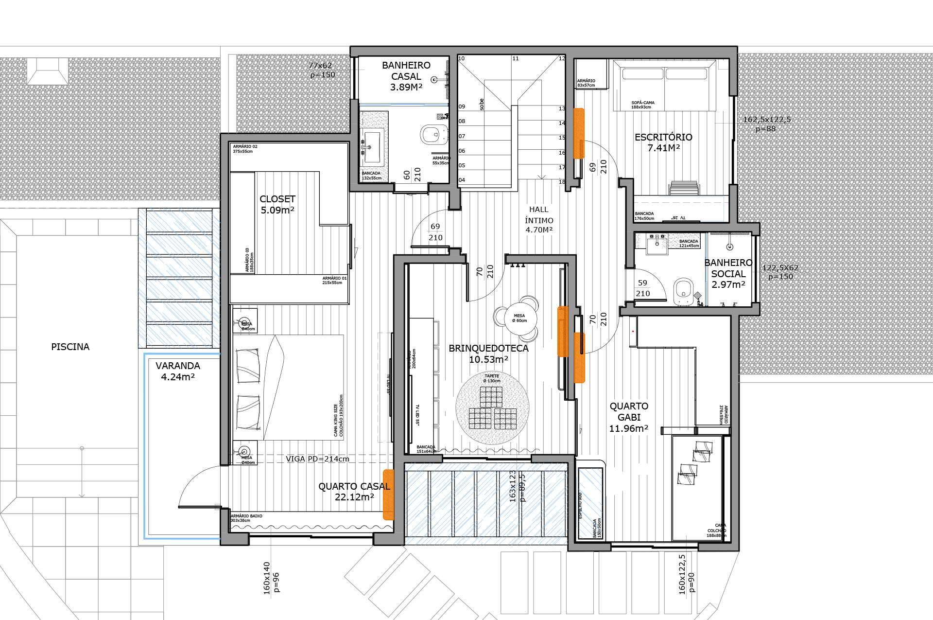
Metragem: 343 m²
Proposta: projeto de reforma completo
Perfil do projeto: O perfil desta casa foi totalmente modificado durante o planejamento da reforma. O conceito adotado no projeto foi de uma volumetria mais reta e contemporânea.
O primeiro passo foi modificar o telhado, que deixou de ser aparente e passou a ser mais reto. Depois, partimos para a modificação das esquadrias.
A fachada levou a aplicação de porcelanato amadeirado para marcar a volumetria. A conexão entre as partes foi feita utilizando um pergolado de alumínio e vidro, pois ao mesmo tempo que protegeria da chuva, deixaria a luz natural entrar para o interior.
A planta da casa já possuía uma configuração boa, então o foco da intervenção foi melhorar a integração dos ambientes: no térreo, fizemos modificações que visaram à melhoria da circulação, favorecendo a maior integração da cozinha com a sala e criando uma comunicação direta da sala com a área de lazer; no andar superior, só houve a modificação no posicionamento das portas para que a nova circulação atendesse às necessidades dos novos moradores.
A paleta adotada teve os tons neutros como referência, alternando entre o off-white e tons de cinza.
Todo interior da casa recebeu marcenaria e armários planejados. A folha adotada na marcenaria foi a peroba do campo.







































