Ficha Técnica
Local: Freguesia – Rio de Janeiro
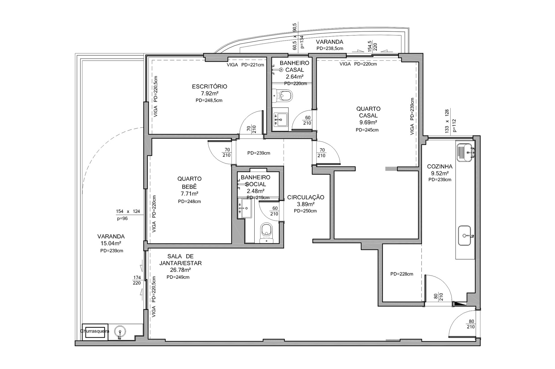
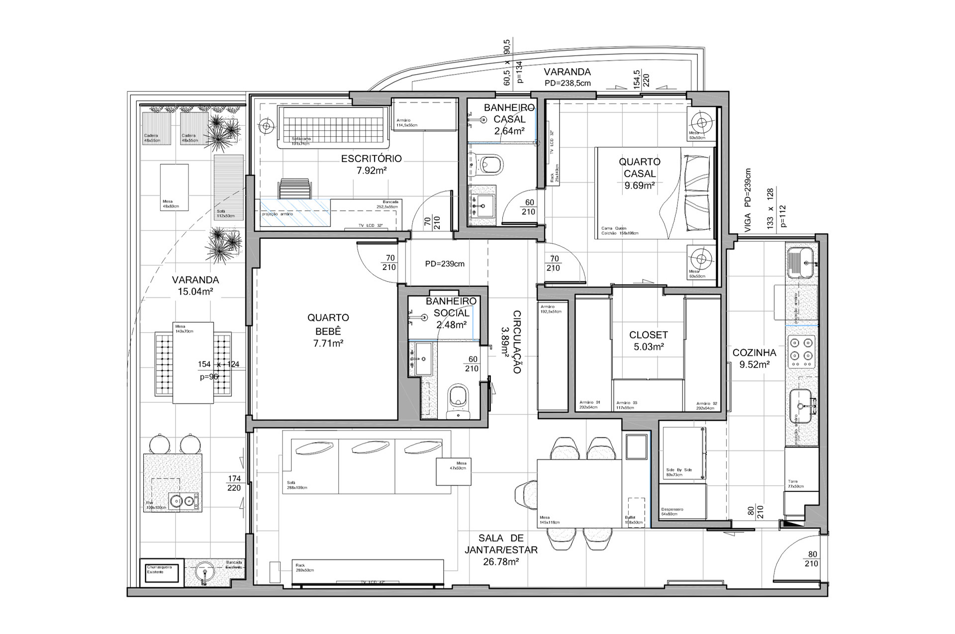
Metragem: 97 m²
Proposta: projeto de reforma completo
Perfil do projeto: O projeto arquitetônico desenvolvido para este casal, contemplou os estudos de layouts, projeto de iluminação, ajustes na elétrica e planejamento do mobiliário. Associado a esse “mix“, optou-se também pela troca de alguns acabamentos que valorizassem ainda mais os espaços: faixas de pastilhas de vidro PORTO DESIGN foram colocadas nos banheiros, e um painel de revestimento da CASTELLATO foi escolhido para a sala de jantar. Além disso, os móveis desenhados exclusivamente para cada espaço foram executados pelas marcenarias JJ Marcenaria e Marcenaria Pessanhae e pela loja de planejados Roma Mobili.
A residência é um espaço de identificação e sentimento de pertencimento que somente é possível imprimir ao projeto quando se leva em consideração a personalidade do cliente. Cada projeto, neste sentido, é único, criando um ambiente funcional e estético com a identidade do cliente.













