Ficha Técnica
Local: Tijuca – Rio de Janeiro
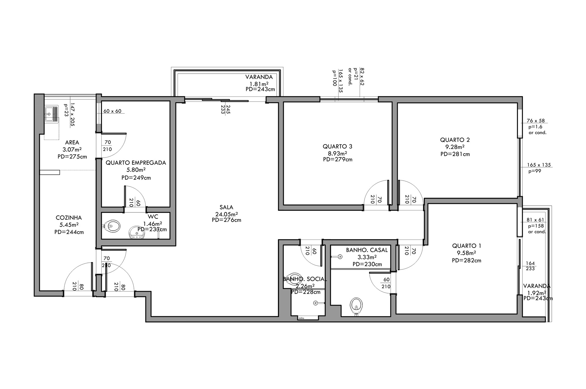
Metragem: 90.74 m²
Proposta: projeto de reforma completo
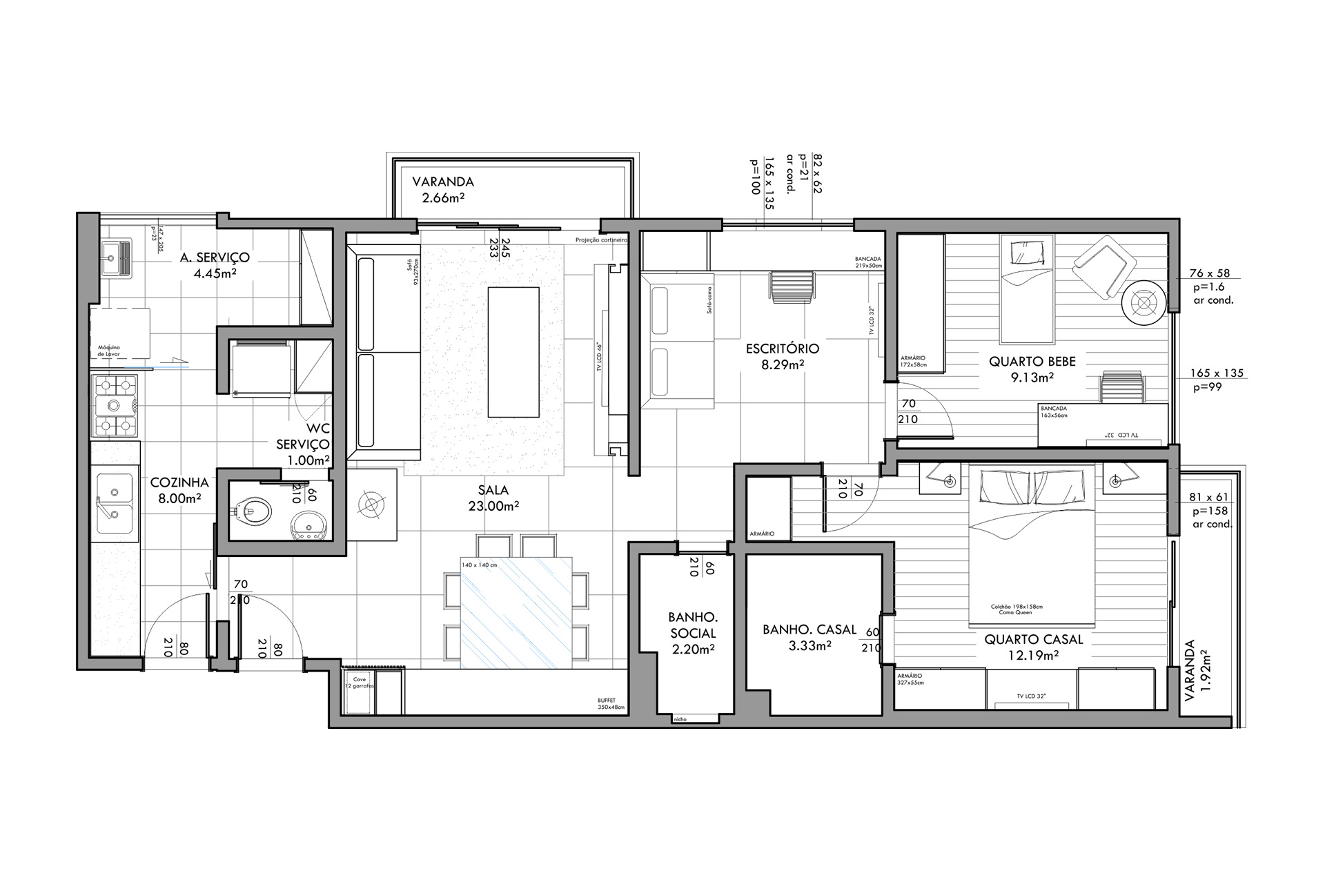
Perfil do projeto: A planta do imóvel, que inicialmente tinha três quartos, foi modificada para eliminar o extenso corredor e reverter este espaço para os quartos. Um dos quartos se transformou em escritório por um desejo e necessidade dos clientes. É através do escritório que se faz acesso aos outros dois quartos.
Outra opção dos clientes foi abrir mão do quarto de serviço e redistribuir esta área para a cozinha e a área. Essa escolha permitiu ampliar a capacidade de armários e também a bancada da cozinha. Esta ganhou um cantinho para lanches rápidos. Como o imóvel era antigo, a reforma teve que contemplar a troca de todos os revestimentos e instalações (hidráulica e elétrica). Nos Banheiros usou-se porcelanatos brancos associados a pastilha de vidro azul-marinho no formato 3x3cm. Na cozinha também se usou a mesma linha de pensamento: pastilhas brancas com inox no formato 3x3cm e piso branco.
A surpresa da casa encontra-se na sala. Logo no hall de entrada há um painel da CASTELLATO para dar as boas-vindas. A marcenaria exclusiva revela um aparador junto à mesa e uma porta ripada de correr. Atrás dela esconde-se a adega e as taças. O aparador serve para acomodar melhor a mesa de jantar e servir de apoio por funcionar como uma extensão dela. O Painel da TV simples em laca branca ajuda a fechar a composição. Outro detalhe, surpreendente é a porta amarela que dá para cozinha – além da cor diferente ela tem um visor que permite espiar o que acontece por lá.







