Ficha Técnica
Local: Tijuca – Rio de Janeiro
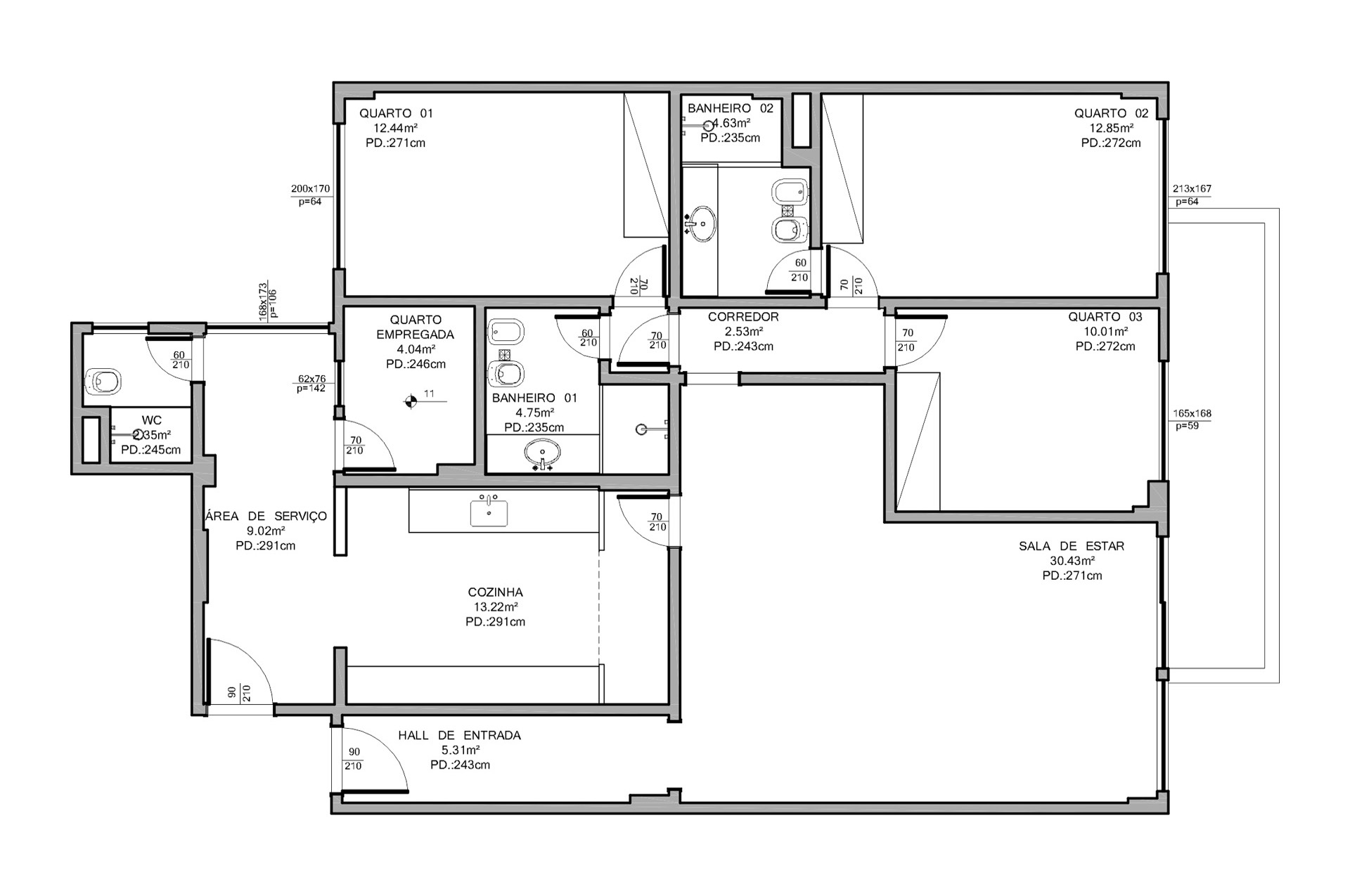
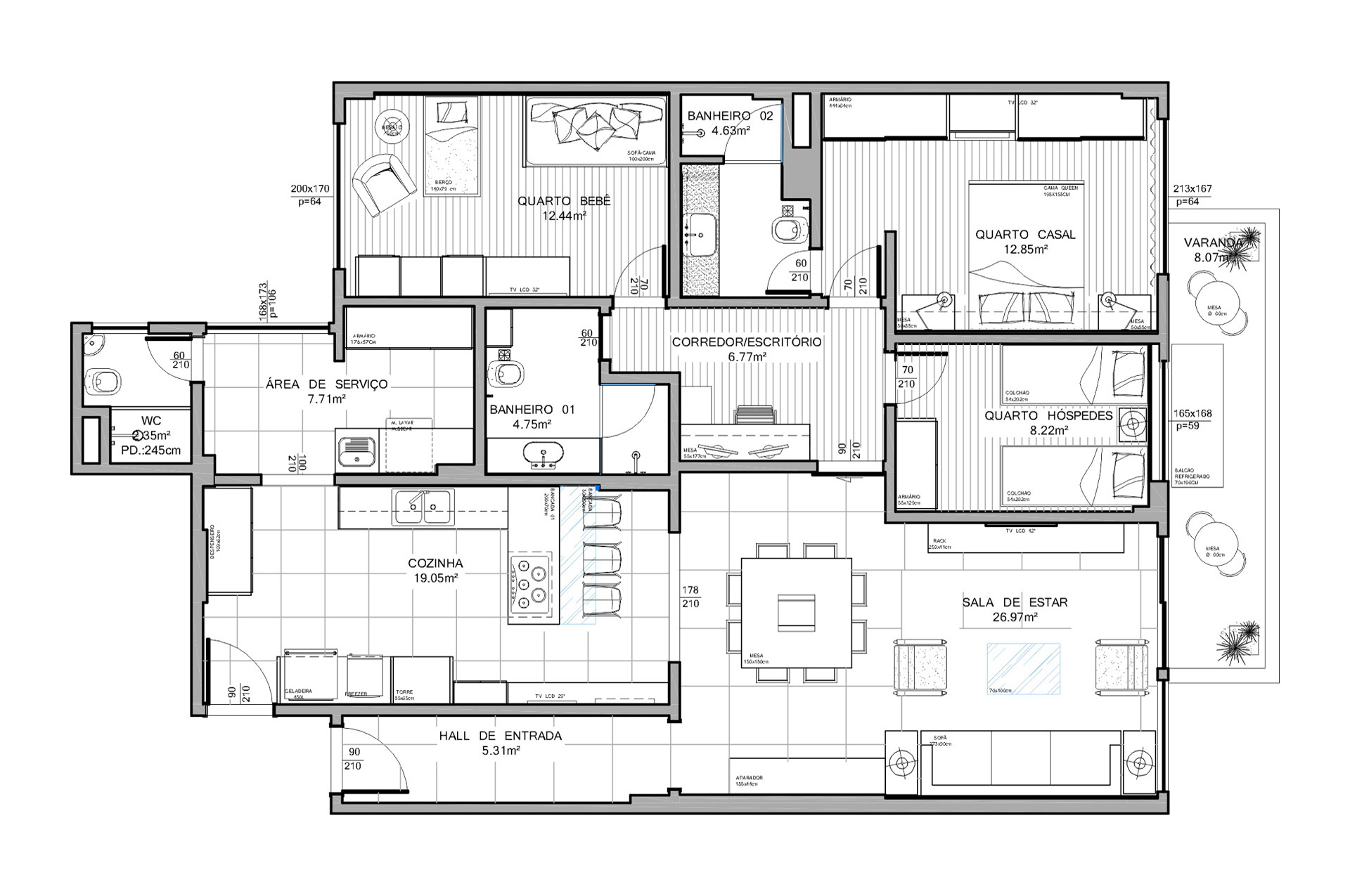
Metragem: 138 m²
Proposta: projeto de reforma completo
Perfil do projeto: O projeto começou propondo alterações funcionais na planta do imóvel. Sendo assim, a reforma foi completa, passando por todos os cômodos da casa. Optou-se pela troca de todos os revestimentos e instalações (elétrica e hidráulica). A paleta de cores da casa foi a neutra. Logo a base de cores que predomina nos revestimentos, permeia entre o off-white e o nude. As cores vieram de revestimentos aplicados de forma pontual: azulejos estampados na cozinha, pastilhas em tons de azul da VIDRO REAL no banheiro de casal e pastilhas peroladas da PORTOBELLO no banheiro social. Um dos desejos mais importantes do casal era a integração da cozinha com a sala. A ideia era estabelecer uma conexão equilibrada entre os dois ambientes, criando harmonia entre as paletas de cores já definidas. O charme da casa é uma parede diferente na sala, onde entrou um painel de revestimento da CASTELLATO. O projeto de iluminação foi desenvolvido pensando na valorização dos espaços e da decoração. Outro ponto importante do projeto foi o desenvolvimento de móveis exclusivos para cada ambiente: usou-se da mescla de móveis planejados e peças em marcenaria.













